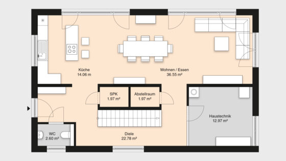
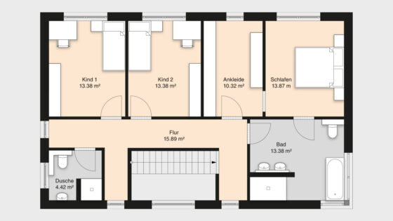
Der 2-geschossige Wohntraum für mehrere Generationen.
Wenn Sie ein kompaktes Grundstück haben und dort genügend Platz für mehrere Generationen schaffen wollen, dann ist eine 2-geschossige Stadtvilla der OHB Hausbau-Gruppe die perfekte Wohn-Idee für Sie. Jede Ihrer Vorstellungen fließt in unsere gemeinsame Hausbau-Planung mit ein, sodass Sie und ihre Familie rundum zufrieden sind.

















