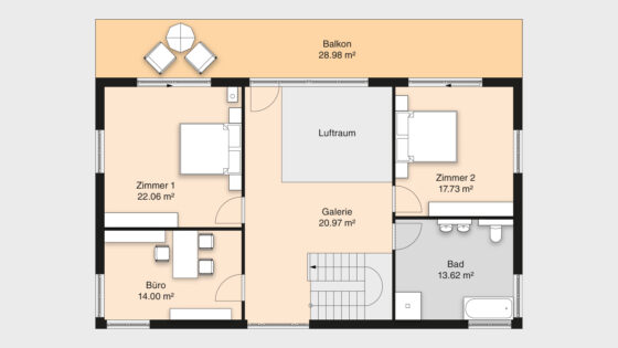
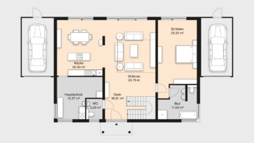
Der Wohntraum für ein ganz besonderes Lebensgefühl
Ein herausragendes und großzügiges Wohngefühl bekommen Sie, wenn Sie sich für ein Haus aus der Serie Eleganz der OHB Hausbau-Gruppe entscheiden. Auf 2 Etagen erwartet Sie eine Villa mit allem Komfort, den Sie sich wünschen. Eleganz und höchste Effizienz laden hier zum Einrichten und verwirklichen Ihrer Träume ein.

















